My Third Year 

 

 

The first term of my final year consisted of a brief which allowed us to pick any building around the area of Brighton which was abandoned or currently empty. My chosen site was located at 87 western road, this area was very well known for its history and the variety of shops it displayed. The ethos of this year’s studio is to challenge the idea of the physical and digital world. I chose to express this idea through analysing time and history within the site.

 

 

Site Plan 1:500 

 

 

 

 

Collage

 

Representing a collection of history and time within the site, displaying its previous programme as a florist in the 1870s.

Axonometric Ideation 

 

Through collecting research and exploring the local flower shops within Brighton, an illustration of what the site may have looked like in the 1870s was made. 

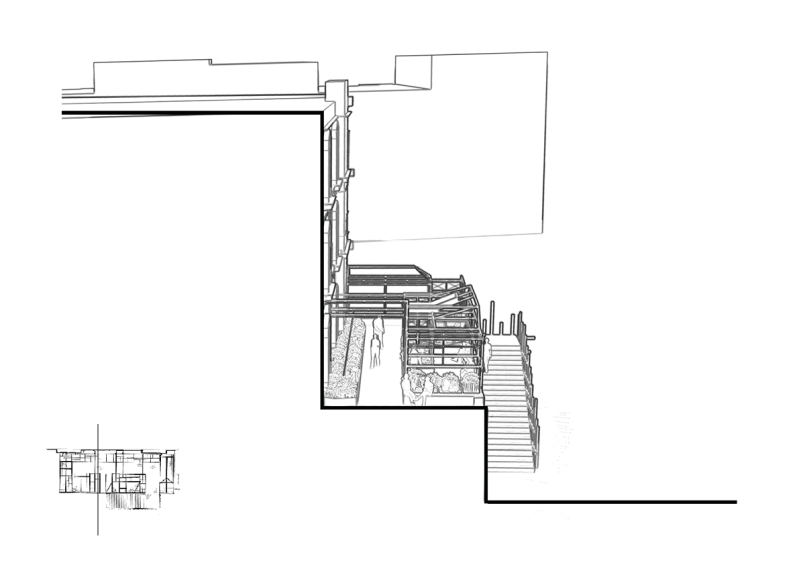
Exploded Axonometric 

 

Different sketches and ideas were collaborated to create a new design which would live on top of the site. Copper piping and angled roofs where placed to distribute rain water in the red, yellow and blue plant bases of the roof. These colours are a reference towards the De Stijl art movement. This allowed me to leave my own piece of history within the site through representing my Dutch descent.  

Final Plan 

Perspective Section 

Day 1 of Finished Design 

 

Chalk which has been excavated from the local cliffs is compressed and then brought to site. The chalk itself represents thousands of years of history and therefore was used as a symbolic representation for history within the site. This can be seen on the ground floor, at the front entrance. 

Day 100 of Finished Design 

 

After roughly 100 days the chalk would loose its strength and collapse due to weathering. It will then leave a trail onto the street which will eventually create a new landscape once this process is repeated and the chalk is replaced. This was an essential idea within the design process as it will represent time and history for when people may visit the site. Over time members of the public would see change and be curious as to what the purpose of the proceeding may be. This will hopefully spark collective thinking and will bring people together.

Rendering No 1

Rendering No 2

FINAL PORTFOLIO Compressed
PDF – 15.4 MB 362 downloads

 

 

The Final Project

 

 

 

Throughout Term 1 I investigated how the site has changed and how it will continue to do so in the future. This allowed me to start a conversation towards acknowledging time and the layers which are held within it. Therefore, it is was only right I continued this into Term 2.

Within the second term, our next task was to provide a proposal that would be placed within a vacant building. My site was situated at 56 Western Road.

 

 

Existing Site Plans

Exploded axonometric view of site 

 

A short Youtube clip - Displaying my design concept 

 

Please feel free to check out my short clip on YouTube. The video represents an ideology of how my proposal may erode, also including the relationship between the public and private spaces.

Link: https://youtu.be/3dbFxY-LJKo

Concept image - displaying internal experience and view points

Structural diagram 

A key point within my project was to make sure that I was respecting the existing building but also bringing new life to the site. This meant that insuring a suitable replacement for the structural entities was vital to completing a successful retrofit.

 

 

 

 

 

Sun path analysis 

This is one of four light studies which took place in the later part of the portfolio, analysing where the light falls throughout each floor with the existing frame work still in tact. Light has been a huge part of my project and it became crucial in the orientation of design, please feel free to look at my portfolio link to see the other light studies which took place. 

 

 

 

 

 

 

The Journey through my proposal 

 

 

 

 

Mosaic Hand Rails 

 

This was a small detail I had added into my project to pay tribute to my president studies around East Sussex and to also hold another element of history within my proposal. 

 

 

 

 

Final Proposed Plans

Final Proposed Perspective Section

Internal Renders

The internal renders illustrate the areas which will be illuminated throughout year on the solstice and equinox. The display consists of a caustic light projection, this is the reaction once the sunlight reflects through the water. Within this process the light is contained and controlled by the client, who is an archeologist. For many archeologist the take joy out of collecting small artifacts they may have found throughout their career. Each of this objects will represent certain moments in time. Light however is something which isn't materialistic but will also represent moments in time. Giving the client control of the light will provide an opportunity for him to take ownership of the light within his house. This will provide a unique artifact for the client to study and observe.

External Render

This is what my proposal will look like on day one.

This is what my proposal will look like on day 100. 

 

Over time the existing building will eventually erode, exposing the installation. The materials selected will also age over time and will continue their natural entropy. This will continue the process of encapsulating time and historic referencing, providing a symbol for modern day
archaeology.

 

Term 2 Portfolio Final Compressed 1
PDF – 27.2 MB 335 downloads